上一篇:生料立磨技術參數分析
下一篇:水泥生料超細立磨機工作效率如何
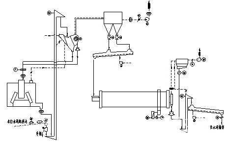
在水泥生產過程中,粉磨是電耗高的工藝環節,約占水泥綜合電耗的60~70%,而長期以來,電能利用率僅有7%左右的球磨機一直在粉磨中占主導地位,粉磨工藝的節能改造便成為水泥界研究的重點,近二十年來,與傳統球磨機相配套的預粉磨裝備技術有了長足的發展。預粉磨裝備通過部分或全部地取代球磨機第一倉粉磨任務,使物料的破碎主要在預粉磨裝備中完成,從而提高整個粉磨系統的能量利用率,且能在降低能耗的同時保證水泥成品的質量與球磨生產水泥相當。可以說,在立磨終粉磨系統大規模工業應用之前,預粉磨裝備的利用是水泥工業粉磨工藝發展的又一主要途徑,而且預粉磨裝備在現有球磨系統上進行節能技改有著更為明顯的優勢。

采用外循環水泥立磨預粉磨技術,并結合選粉機選粉工藝,在預粉磨過程中能磨制出較多的粉狀物料(<0.3mm),在選粉工藝上能將該部分細粉選出、又不會使1mm以上粒徑的物料帶出V型選粉機,將這部分細粉喂入球磨機進行研磨,能大大提高球磨機的產量,降低工序電耗,將水泥預粉磨系統的粉磨電耗降低到一個新的水平,同時為中國建材行業水泥粉磨節能降耗提供了一個新的選擇。
上一篇:生料立磨技術參數分析
下一篇:水泥生料超細立磨機工作效率如何
版權所有?:浙江同力重型機械制造有限公司 浙ICP備11047279號-2

浙公網安備 33048302000399號